ZQDF(Y)系列蒸汽(液用)电磁阀是工业过程自动化控制系统用的执行器。它在接受电控信号后能自动开启或关闭,实现对管道中的流体介质的通断或流置调节控制,从而对系统中的温度、流量、压力等的参数进行自动调节或远程控制。
本系列电磁阀可广泛地应用于纺织、印刷、化工、塑料、橡胶、制药、食品、建材、机械、电器、表面处理等生产和科研部门以及浴室、食堂、空调等人们日常生活设施中。ZQDF系列电磁阀主要用于空气、蒸汽、煤气等气体介质的控制。ZQDF-Y系列电磁阀主要用于自来水、蒸馏水、冷冻盐水、电镀废液等液体介质,同时也用于粘度小于4℃的油类。

| 参数型号 | Z QDF-1 | Z QDF-2 | Z QDF-3 | Z QDF-1Y | Z QDF-2Y | Z QDF-3Y | |
| 公称压力(MPa) | 1.6 | ||||||
| 工作压差(Mpa) | DN15-20 | 0.1~1.6 | |||||
| DN65-100 | 0.05~1.6 | ||||||
| 介质种类 | 煤气、空气等 | 饱和蒸汽 | 过热蒸汽或高温气体 | 水油液体 | 热水 | 高温水、油 | |
| 介质温度(℃) | ≤60 | ≤180 | ≤220 | ≤60 | ≤180 | ≤220 | |
| 电源电压 | AC220V其余规格可作特殊订货 | ||||||
| 使用寿命 | 按JB/T7352-94规定 | ||||||
| 泄漏量(m/min) | 按JB/T7352-94·F规定 | ||||||
| 功耗(VA) | 50 | ||||||
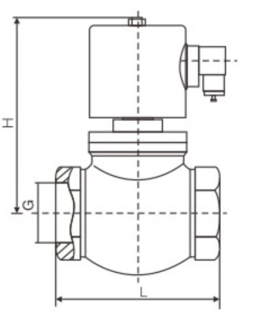
| 公称通径 DN | 内螺纹连接 | 法兰尺寸 | |||||||||||
| 外形尺寸 | 内螺纹 | 外形尺寸 | 法兰连接 | ||||||||||
| H | L | G | H | L | D | D1 | D2 | B | I | N-D | |||
| 15 | 153 | 92 | 1/2 | 153 | 115 | 95 | 65 | 46 | 14 | 2 | 4-ø14 | ||
| 20 | 153 | 92 | 3/4 | 153 | 150 | 105 | 75 | 56 | 16 | 2 | 4-ø14 | ||
| 25 | 153 | 110 | 1 | 153 | 160 | 115 | 85 | 65 | 18 | 3 | 4-ø14 | ||
| 32 | 176 | 120 | 1 1/4 | 176 | 180 | 140 | 100 | 76 | 18 | 3 | 4-ø18 | ||
| 40 | 176 | 140 | 1 1/2 | 176 | 200 | 150 | 110 | 84 | 18 | 3 | 4-ø18 | ||
| 50 | 192 | 162 | 2 | 192 | 230 | 165 | 125 | 99 | 20 | 3 | 4-ø18 | ||
| 65 | 250 | 290 | 185 | 145 | 118 | 20 | 3 | 4-ø18 | |||||
| 80 | 260 | 310 | 200 | 160 | 132 | 20 | 3 | 8-ø18 | |||||
| 100 | 290 | 350 | 220 | 180 | 156 | 22 | 3 | 8-ø18 | |||||
浙公网安备 33032402001116号 网站地图
13968958698
0577-67378705 / 67378706
浙江省温州市瓯北镇东瓯工业区和二园区大道926号